首頁 > 房屋出售 > 誠昱/西港現代全新未住透天厝
第一房屋仲介 - 誠昱/西港現代全新未住透天厝

誠昱/西港現代全新未住透天厝

透天/別墅      1320萬

系統編號

物件區域
723台南市西港區

物件地址
大竹林

地坪
28.5 坪

總建坪
48.24 坪

室內坪數
48.24 坪

主建物坪
43.62 坪

附屬建物坪數
4.62 坪

車位
車庫    

總樓層
3 樓

位於樓層
1~3 樓

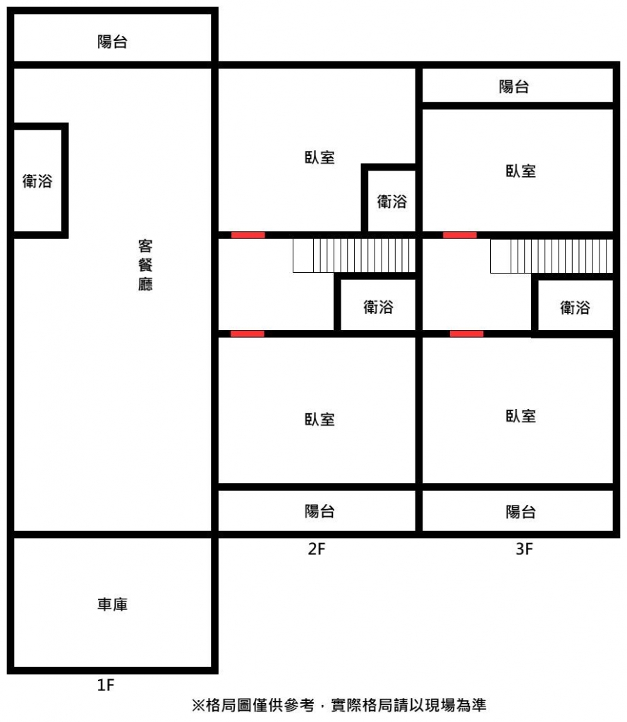
格局
4房2廳4衛4陽台

房屋座向
座西北朝東南

建物結構
鋼筋混凝土(RC)

建築完工
2025年 屋齡約1年

臨路寬度
約6 米路

特色說明
(1).環境超然.湛藍天空.交通四通八達.微風吹拂
(2).晨昏灑灑水.大地坪.室內視野佳.與大自然為伍
(3).鄉村農地.老狗.老地.老友.天南地北好住處
(4).配備完全.不積水.優雅之地.採買方便
(5)W寬約4.3米*深度21米.臨路6米

※以上資訊如有記載錯誤,一律依謄本登記簿為準

 - 誠昱/西港現代全新未住透天厝
 - 誠昱/西港現代全新未住透天厝
 - 誠昱/西港現代全新未住透天厝
 - 誠昱/西港現代全新未住透天厝
 - 誠昱/西港現代全新未住透天厝
 - 誠昱/西港現代全新未住透天厝
 - 誠昱/西港現代全新未住透天厝
 - 誠昱/西港現代全新未住透天厝
 - 誠昱/西港現代全新未住透天厝
 - 誠昱/西港現代全新未住透天厝
 - 誠昱/西港現代全新未住透天厝
 - 誠昱/西港現代全新未住透天厝
 - 誠昱/西港現代全新未住透天厝
 - 誠昱/西港現代全新未住透天厝
推薦物件...

誠昱/國三六甲裕農都內農.

誠昱/國三六甲裕農都內農.
298 萬

誠昱/平實兩房平車預售屋

誠昱/平實兩房平車預售屋
928 萬

誠昱/鹽水月津帝居全新車.

誠昱/鹽水月津帝居全新車.
1258 萬

誠昱/夏林整新3房樓寓1

誠昱/夏林整新3房樓寓1
638 萬

誠昱/新營姑爺1.8分重.

誠昱/新營姑爺1.8分重.
299 萬

誠昱/新化近關新路方正農.

誠昱/新化近關新路方正農.
1300 萬

誠昱/新化北勢外環農地

誠昱/新化北勢外環農地
2623 萬

誠昱/新化廠房+丁種建築.

誠昱/新化廠房+丁種建築.
108388 萬


更多..
地圖
分享到臉書